Description
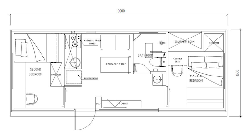
Layout

Equipment:
Bathroom
- Shower,
- Towel Rack
- Basin
Kitchen
- Built-in Cabinets
- Sink
Bedroom
- Built-In Bed Rack
- Wardrobe
- Bar Counter
Living room
- Dining Table
- Sofa
Gallery:















Cube Two (C2) is the ideal 2-bedroom ADU solution for families of 3~4. Our open-concept design creates a spacious living area, perfect for family entertainment and activities. Our unique skylight dome fills your home with natural light by day and offers an unparalleled star-gazing experience by night, sparking imagination in both kids and adults. Cube Two’s smart design and furnishings offers an impressive 10-15% more storable area.
| Dimensions | Length 9m / 29' 6" |
|---|---|
| Living Area | 32.40 sqm / 348.75 sqft |
| Weight | ≈ 7000 kg / 7 tons / 14000 lbs |
| Layout | Living Room, Bedroom, Kitchen, Bar Counter, Bathroom |
| Renovation | Fine Decoration, Skylight & Fully Furbish |
| Pest control | Termite Resistant |